CUPRINS
20. Strada Șelari
_raport
_recomandări privind conservarea și valorificarea vestigiilor arheologice
planșa 01_ planul vestigiilor arheologice (tronsonul str. Lipscani - str. Covaci; tronsonul str. Covaci - str. Şelari nr. 13)
planșa 02_ planul vestigiilor arheologice (str. Franceză - tronsonul str. Şelari - Curtea Veche)
planșa 03_planul vestigiilor arheologice (tronsonul str. Franceză - Splaiul Unirii)
19. Strada Covaci - Strada Soarelui
_raport
_recomandări privind conservarea și valorificarea vestigiilor arheologice
planșa 01_ Planul vestigiilor arheologice - str. Soarelui
planșa 02_ Planul vestigiilor arheologice - str. Covaci
18. Strada Stavropoleos
_raport
_recomandări privind conservarea și valorificarea vestigiilor arheologice
planșa 01_ planul vestigiilor arheologice (tronsonul Calea Victoriei - str. Poştei)
planșa 02_ planul vestigiilor arheologice, secţiuni caracteristice - Hanul Stavropoleos
planșa 03_ planul vestigiilor arheologice (tronsonul str. Poştei - str. Smârdan)
17. Strada Poștei
_raport
_recomandări privind conservarea și valorificarea vestigiilor arheologice
planșa 01_ planul vestigiilor arheologice
16. Strada Șepcari
_raport
_recomandări privind conservarea și valorificarea vestigiilor arheologice
planșa 01_ planul vestigiilor arheologice (tronsonul Covaci - Gabroveni)
planșa 02_ planul vestigiilor arheologice (tronsonul Franceză - Covaci)
15. Strada Pictor N. Tonitza
_raport
planșa 01_ planul vestigiilor arheologice
14. Lipscani nr. 30
_recomandări privind conservarea şi valorificarea vestigiilor arheologice
planşa 02_Secţiune caracteristică
planşa 03_Restricţii şi permisivităţi de intervenţie
13. Lipscani nr. 32-34
_recomandări privind conservarea şi valorificarea vestigiilor arheologice
planşa 02_Secţiuni caracteristice
planşa 03_Restricţii şi permisivităţi de intervenţie
12. Piaţa Universităţii - Academia Domnească
_recomandări privind conservarea şi valorificarea vestigiilor arheologice
planşa 02_Secţiune transversală-reconstituire prin ansamblul Sf. Sava
planşa 03_Restricţii şi permisivităţi de intervenţie
11. Strada Lipscani - Hanul Şerban Vodă
planşa 01_Planul vestigiilor arheologice
planşa 02_Secţiuni caracteristice A-A'. B-B'
10. Strada Zarafi
planşa 01_Planul vestigiilor arheologice
9. Strada Lipscani
planşa 01_Planul vestigiilor arheologice / tronson str. Smârdan - Lipscani nr.33
planşa 02_Planul vestigiilor arheologice / tronson Lipscani nr. 33 - str. Şelari
planşa 03_Planul vestigiilor arheologice / tronson str. Şelari - Lipsani nr.55
planşa 04_Planul vestigiilor arheologice / tronson Lipscani nr.22 - Lipscani nr.63
planşa 05_Planul vestigiilor arheologice / tronson str. Zarafi - b-dul I.C. Brătianu
8. Strada Gabroveni
_raport
planşa 01_ Planul vestigiilor arheologice / tronson B-dul I.C. Brătianu - Pasajul Francez
planşa 02_ Planul vestigiilor arheologice / tronson Pasajul Francez - str. Zarafi
planşa 03_ Planul vestigiilor arheologice / tronson Gabroveni nr.19 - str. Zarafi
planşa 04_ Planul vestigiilor arheologice / tronson str. Şelari - Gabroveni nr. 19
7. Pasajul Francez
_raport
planşa 01_ Planul vestigiilor arheologice
6. Strada Poştei - sector Sf. Dumitru
_raport
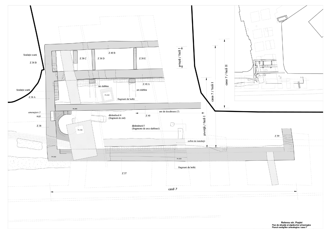
planşa 01_ Planul vestigiilor arheologice / casa 7
5. Strada Sf. Dumitru - Strada Pictor N. Tonitza
_raport
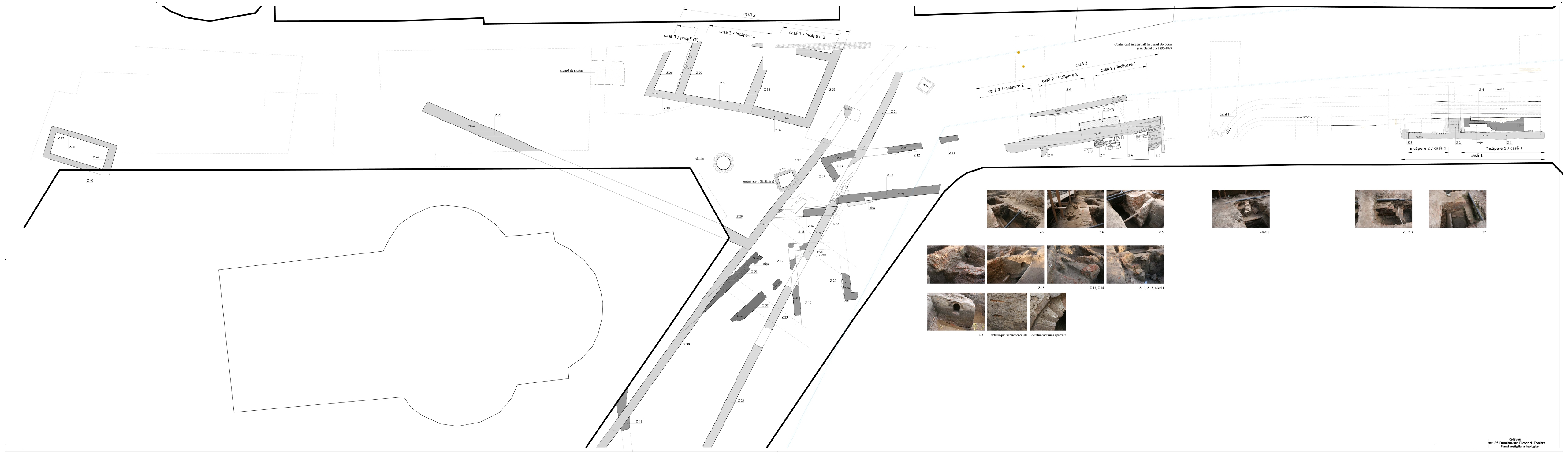
planşa 01_ Planul vestigiilor arheologice de pe str. Sf. Dumitru şi str. Pictor N. Tonitza (tronson nordic)
planşa 02_ Planul vestigiilor arheologice de pe str. Pictor N. Tonitza (tronson sudic)
4. Strada Franceză
_raport
planşa 01_ Planul tronsonului Calea Victorie - strada Poştei
planşa 02_ Planul tronsonului strada Pictor N. Tonitza - strada Şelari
3. Strada Lipscani - Hanul Greci
_raport
planşa 01_ Planul vestigiilor arheologice
2. Strada Lipscani - Hanul Zlătari
_raport
planşa 01_ Planul vestigiilor arheologice
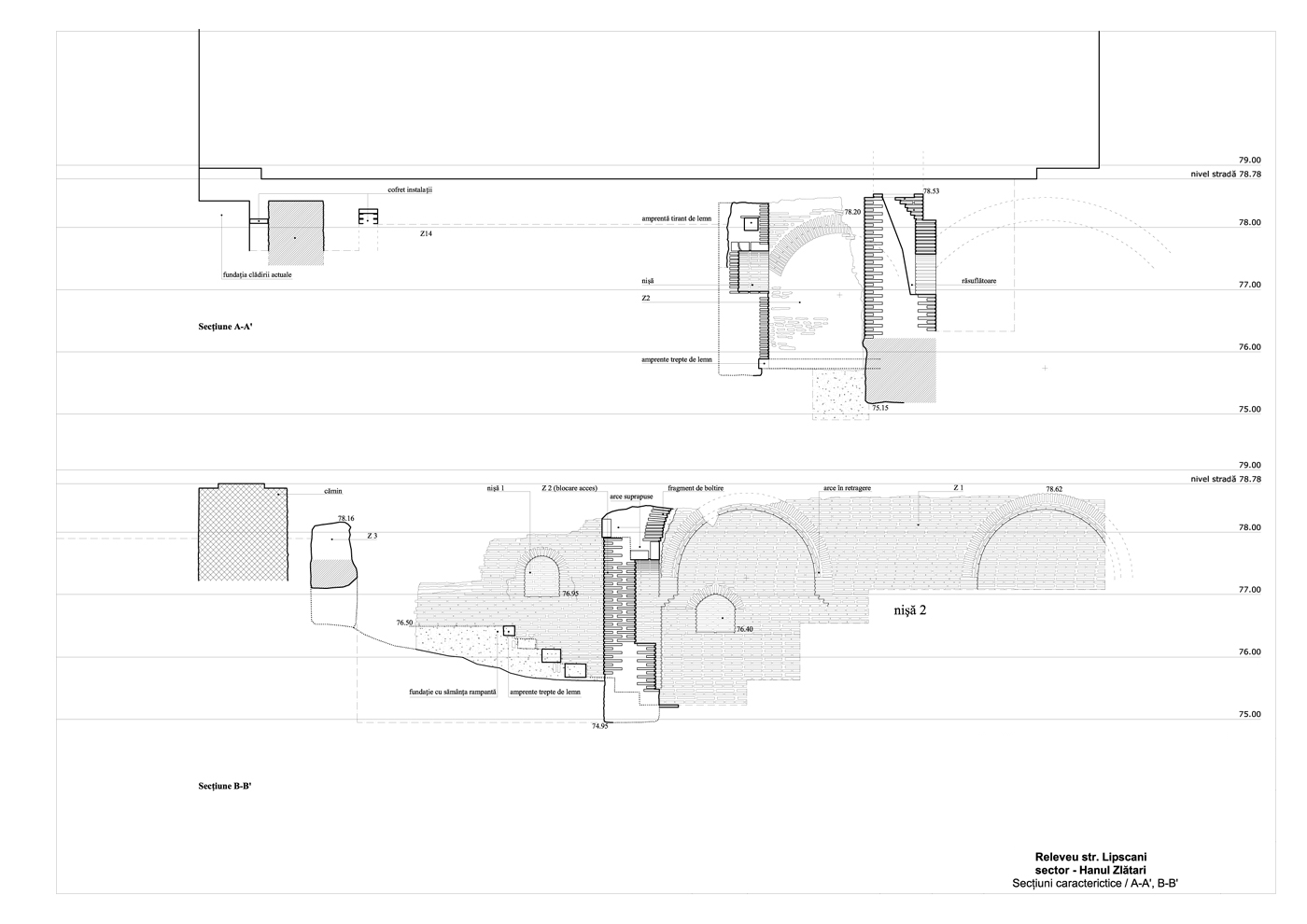
planşa 02_ Secţiuni caracterictice A-A', B-B'
1. Strada Smârdan
_raport
planşa 01_ Plan de ansamblu / str. Smârdan
planşa 02_ Planul tronsonului sudic / sector 1
planşa 03_ Planul tronsonului sudic / sector 2
planşa 04_ Secţiuni caracteristice A-A', B-B' / tronson sudic - sector 1
planşa 05_ Secţiuni caracteristice C-C', D-D', E-E' / tronson sudic - sector 1
planşa 06_ Secţiuni caracteristice F-F', G-G' / tronson sudic - sector 2


